Casa en San Luis Potosí, Colonia Roma
2020 - Ciudad de México
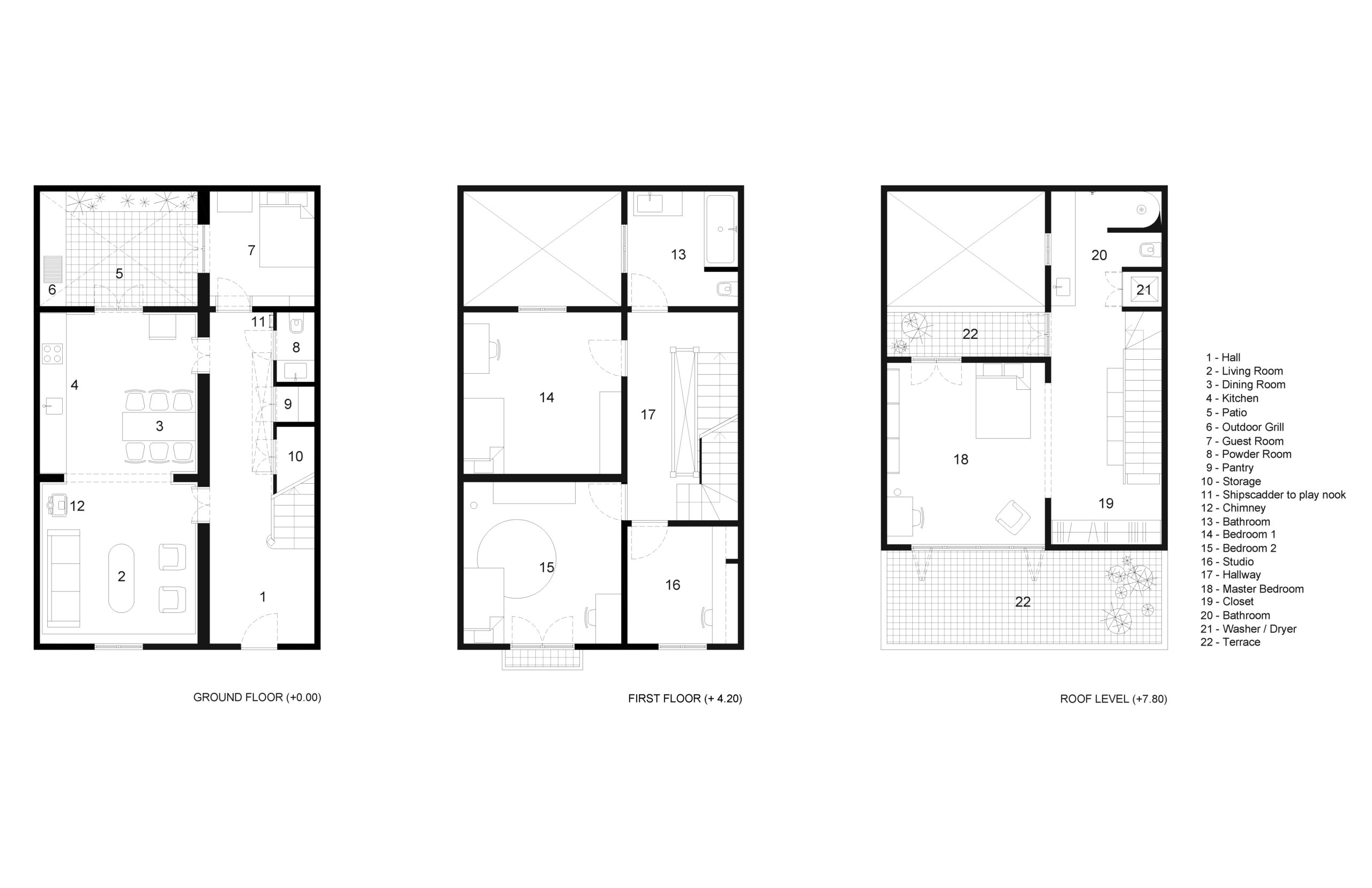
Remodelación de una casa de 1910 en la Colonia Roma de la Ciudad de México. Si bien la casa se ubica en un terreno pequeño (solo 7 metros de frente y 12 metros de fondo), la generosa altura de los techos (3.80 cm en la planta baja) le da una sensación de amplitud y amplitud. La audaz elección de colores y materiales, como los azulejos de cemento verde y negro en la planta baja, conecta la casa con su historia y contexto.
Diseño arquitectónico: PRODUCTORA (Carlos Bedoya, Víctor Jaime, Wonne Ickx, Abel Perles) | Colaboradores: Pablo Manjarrez | Ubicación: Colonia Roma, Ciudad de México | Tipo: Residen-cial | Área: 190 m² | Fecha: 2020 | Fotografía: Onnis Luque
External link: AN Newspaper


