Centro de Artes Escenicas - POK
2018 - Leuven, Belgium
Este proyecto para un nuevo centro de artes escénicas, situado en el centro histórico de la ciudad de Lovaina, se concibe como el vibrante punto focal público de un nuevo barrio urbano verde (Hertogensite), en el que lo antiguo y lo nuevo se entienden como extensiones naturales el uno del otro. El espacio situado entre la preexistente ‘Romaanse Poort’ y el nuevo Centro de Artes Escénicas se transforma en un animado vestíbulo urbano que alberga vegetación, agua, zonas de juego y espectáculos urbanos.
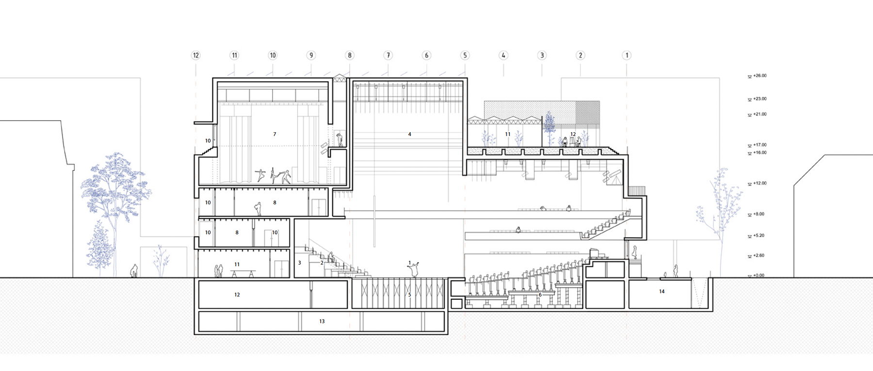
El nuevo edificio de artes escénicas ha sido diseñado como una matriz tridimensional que se entreteje alrededor de los dos auditorios, actuando como un escenario flexible. Su clara disposición organizativa —dividida en tres zonas diferenciadas—, combinada con una serie de ingeniosas conexiones, permite abrir el edificio de manera extensiva y dotarlo de permeabilidad hacia la ciudad. El edificio invita a adoptar un enfoque flexible respecto a la tradicional separación entre las áreas de cara al público y las zonas de servicio interno.
Arquitectura: PRODUCTORA + OUEST | Colaboradores (PRODUCTORA): Ruy Berumen, Diego Velázquez, Emiliano Rode, Alejandra Osorio | Ubicacion: Lovaina, Bélgica | Paisaje: TAKTYK | Estructura: JZH &Partners | Instalaciones: Boydens | Consultor de Teatro: Artsceno + The Space Factory | Acústica: Kahle | Construcción y Sustentabilidad: Bureau Bouwtechniek | Tipología: Infraestructura Cultural | Superficie: 8,000 m2| Fecha: 2018| Ilustración: Brecht Evens | Concurso por Invitación: 2do lugar


